omakotitalo 6h,k, + kellarikerros sauna, suihkutila, pesutupa ja perunakellari 140 m² 119000 €
Petsmovägen 592
MAALAISUNELMA PETSMON IDYLLISSÄ - HYVIN PIDETTY RINTAMIESTALO OMALLA 6 222 m² TONTILLA.
Etsitkö tilaa hengittää, harrastaa ja nauttia luonnon rauhasta? Petsmon halutussa ja yhteisöllisessä kylässä, vain noin 25 minuutin ajomatkan päässä Vaasasta, sijaitsee tämä huolella vaalittu ja teknisesti kattavasti päivitetty omakotitalo.
Energiatehokasta asumista taloon asennetun modernin kalliolämmön ansiosta. Säilytetty mahdollisuus myös puulla lämmittämiseen.
Talon peltikatto että ikkunat on uusittu (ei kellarikerroksen ikkunoita), joten voit keskittyä nauttimaan asumisesta ilman huolta isoista peruskorjauksista. Salaojat on asennettu talon kahdelle sivulle. Lisäksi on julkisivu lisäeristetty ja talon ulkopuoli maalattu.
Upea 6 222 m² rinnetontti antaa tilaa puutarhanhoidolle, leikeille tai vaikkapa pienimuotoiselle omavaraisuudelle.
Pihapiirin ryhdikkäät ulkorakennukset tarjoavat erinomaiset puitteet harrastuksille, nikkaroinnille tai säilytykseen. Yhdestä ulkorakennuksesta on osa tilasta lämpöeristetty.
Tämä koti yhdistää rintamiestalon klassisen tunnelman ja nykypäivän mukavuudet poikkeuksellisen hienolla tavalla. Hyvin hoidettu piha ja rakennukset luovat ehyen ja kutsuvan kokonaisuuden, joka on harvoin tarjolla.
Tule kokemaan Petsmon rauha ja tämän kodin lämmin tunnelma! Ota yhteyttä ja varaa oma esittelyaikasi Tina Kultti 040 5885 885 tai tina@vihdoinkotona-lkv.fi
XXX
LANDSBYGDSDRÖM I IDYLLISKA PETSMO VÄLSKÖTT FRONTMANNASHUS PÅ EGEN 6 222 m² TOMT.
Söker du utrymme att andas, utöva hobbyer och njuta av naturens lugn? I den eftertraktade och gemenskapliga byn Petsmo, endast ca 25 minuters bilresa från Vasa, ligger detta omsorgsfullt vårdade och tekniskt omfattande uppdaterade egnahemshus.
Energieffektivt boende tack vare modern bergvärme som installerats i huset. Möjligheten till vedeldning har också bevarats. Husets plåttak och fönster har förnyats (ej källarfönstren), så du kan fokusera på att njuta av boendet utan oro för stora grundrenoveringar. Dränering har monterats på två sidor av huset. Dessutom är fasaden tilläggsisolerad och husets utsida målad.
Den fantastiga sluttningstomten på 6 222 m² ger plats för trädgårdsskötsel, lek eller varför inte småskalig självförsörjning.
Gårdsplanens stadiga uthusbyggnader erbjuder utmärkta förutsättningar för hobbyer, snickeri eller förvaring. En del av utrymmet i en av uthusbyggnaderna är värmeisolerad.
Byn Petsmo är känd för sin vackra natur. I närheten finns bland annat Petsmo badstrand och den populära Petsmo vandringsled. För barnfamiljer finns även Petsmo daghem i området.
Detta hem förenar frontmannahusets klassiska atmosfär med nutidens bekvämligheter på ett exceptionellt fint sätt. Den välskötta gården och byggnaderna skapar en enhetlig och inbjudande helhet som sällan är till salu.
Kom och upplev lugnet i Petsmo och den varma stämningen i detta hem! Ta kontakt och boka din egen visning Tina Kultti 0405885 885 eller tina@vihdoinkotona-lkv.fi
Etsitkö tilaa hengittää, harrastaa ja nauttia luonnon rauhasta? Petsmon halutussa ja yhteisöllisessä kylässä, vain noin 25 minuutin ajomatkan päässä Vaasasta, sijaitsee tämä huolella vaalittu ja teknisesti kattavasti päivitetty omakotitalo.
Energiatehokasta asumista taloon asennetun modernin kalliolämmön ansiosta. Säilytetty mahdollisuus myös puulla lämmittämiseen.
Talon peltikatto että ikkunat on uusittu (ei kellarikerroksen ikkunoita), joten voit keskittyä nauttimaan asumisesta ilman huolta isoista peruskorjauksista. Salaojat on asennettu talon kahdelle sivulle. Lisäksi on julkisivu lisäeristetty ja talon ulkopuoli maalattu.
Upea 6 222 m² rinnetontti antaa tilaa puutarhanhoidolle, leikeille tai vaikkapa pienimuotoiselle omavaraisuudelle.
Pihapiirin ryhdikkäät ulkorakennukset tarjoavat erinomaiset puitteet harrastuksille, nikkaroinnille tai säilytykseen. Yhdestä ulkorakennuksesta on osa tilasta lämpöeristetty.
Tämä koti yhdistää rintamiestalon klassisen tunnelman ja nykypäivän mukavuudet poikkeuksellisen hienolla tavalla. Hyvin hoidettu piha ja rakennukset luovat ehyen ja kutsuvan kokonaisuuden, joka on harvoin tarjolla.
Tule kokemaan Petsmon rauha ja tämän kodin lämmin tunnelma! Ota yhteyttä ja varaa oma esittelyaikasi Tina Kultti 040 5885 885 tai tina@vihdoinkotona-lkv.fi
XXX
LANDSBYGDSDRÖM I IDYLLISKA PETSMO VÄLSKÖTT FRONTMANNASHUS PÅ EGEN 6 222 m² TOMT.
Söker du utrymme att andas, utöva hobbyer och njuta av naturens lugn? I den eftertraktade och gemenskapliga byn Petsmo, endast ca 25 minuters bilresa från Vasa, ligger detta omsorgsfullt vårdade och tekniskt omfattande uppdaterade egnahemshus.
Energieffektivt boende tack vare modern bergvärme som installerats i huset. Möjligheten till vedeldning har också bevarats. Husets plåttak och fönster har förnyats (ej källarfönstren), så du kan fokusera på att njuta av boendet utan oro för stora grundrenoveringar. Dränering har monterats på två sidor av huset. Dessutom är fasaden tilläggsisolerad och husets utsida målad.
Den fantastiga sluttningstomten på 6 222 m² ger plats för trädgårdsskötsel, lek eller varför inte småskalig självförsörjning.
Gårdsplanens stadiga uthusbyggnader erbjuder utmärkta förutsättningar för hobbyer, snickeri eller förvaring. En del av utrymmet i en av uthusbyggnaderna är värmeisolerad.
Byn Petsmo är känd för sin vackra natur. I närheten finns bland annat Petsmo badstrand och den populära Petsmo vandringsled. För barnfamiljer finns även Petsmo daghem i området.
Detta hem förenar frontmannahusets klassiska atmosfär med nutidens bekvämligheter på ett exceptionellt fint sätt. Den välskötta gården och byggnaderna skapar en enhetlig och inbjudande helhet som sällan är till salu.
Kom och upplev lugnet i Petsmo och den varma stämningen i detta hem! Ta kontakt och boka din egen visning Tina Kultti 0405885 885 eller tina@vihdoinkotona-lkv.fi
Asunnon perustiedot
-
Kohdenumero20548021
-
SijaintiMustasaari Petsmo
Petsmovägen 592, 66540 Petsmo -
TyyppiOmakotitalo (Kiinteistö)
-
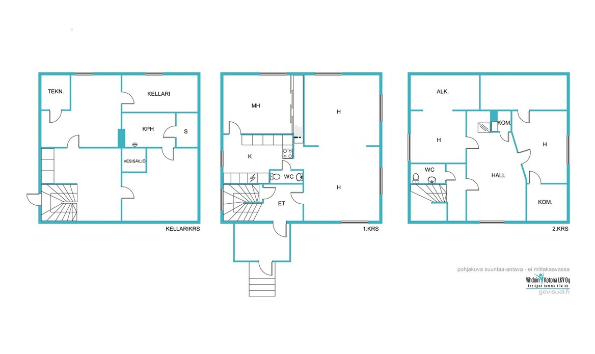
Huoneistoselitelmä6h,k, + kellarikerros sauna, suihkutila, pesutupa ja perunakellari
-
Huoneita6 huonetta tai enemmän
-
Asuinpinta-ala140,0 m²
-
Muiden tilojen pinta-alam²
-
Kokonaispinta-ala140,0 m²
-
Lisätietoja pinta-alastaEi tarkistusmitattu.
Arviolta asuinkerros 80 m2 ja yläkerta 40 m2.
Kellarikerros
X
Inte kontrollmätt.
Uppskattningsvis bostadsvåning 80 m2 och övervåning 40 m2.
Källarvåning. -
Kerrokset2 / 2
-
Rakennusvuosi1955
-
Käyttöönottovuosi1956
-
VapautuminenVapautuminen sopimuksen mukaan
Hinta ja kustannukset
-
Velaton hinta119000 €
-
Myyntihinta119000 €
-
Kiinteistövero240 € / vuosi
-
Lisätietoa maksuistaSatelliittiantenni/kaapeli-tv: 12€ / kk
Muut maksut/lisätietoa maksuista: Lämmitys 6200 kWh vuonna 2025. Enimmillään kulutus ollut 7300 kWh.
On myös toisinaan lämmitetty puilla.
-Vesimaksu 25 /kk/henkilö.
-Jätevesikaivon tyhjennys vuodessa n. 180 euroa.
Stormossen jätemaksu 60 euroa/2 asukasta/vuosi.
X
Uppvärmning 6 200 kWh år 2025. Den högsta förbrukningen har varit 7 300 kWh.
Därtill har man tidvis värmt med ved.
- Vatten 25 /mån/person.
- Tömning av avloppsbrunn ca 180 euro per år.
- Stormossen avfallsavgift 60 euro/2 invånare/år.
Asunnon lisätiedot
-
SaunaAsunnossa oma sauna
-
Tilojen kuvausYläkerran makuuhuoneissa muovimatto + yläkerran makuuhuoneiden välissä olevassa huoneessa laminaattilattia. Asuinkerroksen makuuhuoneessa laminaatti. x Plastmatta i sovrummen på övervåningen. Det finns laminatgolv i rummet mellan sovrummen på övervåningen. Laminat i sovrummet på bostadsvåningen. Asuinkerroksessa on erillinen keittiö, avara ruokailutila ja valoisa olohuone, makuuhuone, erillinen wc. Yläkerta tarjoaa runsaasti tilaa kahden makuuhuoneen, makuuhuoneiden välissä olevan huoneen sekä erillisen wc:n ansiosta. Kellarikerroksessa on pesuhuone, sauna ja kodinhoitotila sekä teknillinen tila varastoineen. x I bostadsvåningen finns ett separat kök, ett rymligt matrum och ett ljust vardagsrum, ett sovrum samt en separat toalett. Övervåningen erbjuder gott om plats tack vare två sovrum, Det finns laminatgolv i rummet mellan sovrummen på övervåningen och en separat toalett. I källarvåningen finns badrum, bastu samt tvättstuga och tekniskt utrymme, vilka kompletterar hemmets praktiska funktioner.
-
Asuntoon kuuluuKaapeli-TV
-
Asunnon kuntoHyvä
-
EnergialuokkaEi energiatodistusta
-
Vesihuollon kuvausVesijohto: Kunnan
-
ViemäriSaostuskaivo
-
Sähköliittymä siirtyyKyllä
-
Siirtyvät liittymätvesiliittymä ja KTV/vatten- el- och kabelTv anslutningar
Asunnon tilat ja materiaalit
-
Rakennus- ja pintamateriaalitRakennusmateriaalit: puu
-
KattoKattotyyppi: harjakatto/åstak
Kate: peltikate/plåttak -
Keittiön kuvausLattiamateriaalit: laminaatti
Seinämateriaalit: kaakeli, tapetti
Työtaso: laminaatti
Varusteet: astianpesukone
Jääkaappi ja pakastin: jääkaappi/pakastin -
Kylpyhuoneen kuvausLattiamateriaalit: laatta
Seinämateriaalit: kaakeli, puu
Kellarikerroksessa, remontoitu arviolta -80 luvun puolessa välissä. -
WC-tilojen kuvausLukumäärä: 2
Lattiamateriaalit: muovi
Seinämateriaalit: muovi
1 kpl asuinkerroksessa ja 1 kpl yläkerrassa. -
Olohuoneen kuvausLattiamateriaalit: laminaatti
Seinämateriaalit: tapetti
Kaksi olohuonetta asuinkerroksessa.
Toista olohuonetta käytetään tällä hetkellä ruokailusalina.
x
Två vardagsrum på bostadsvåningen. Det ena vardagsrummet används för tillfället som matsal." -
Makuuhuoneiden kuvausLukumäärä: 3
Lattiamateriaalit: muovi, laminaatti
Seinämateriaalit: tapetti
Kaksi makuuhuonetta yläkerrassa ja yksi asuinkerroksessa.
x
Två sovrum på övervåningen och ett på bostadsvåningen. -
Kodinhoitohuoneen kuvausKellarikerroksessa pesukoneliitäntä.
x
Tvättmaskinsanslutning i källarvåningen. -
Säilytystilojen kuvausMuut säilytystilat: ulkovarasto
Talon tontti
-
Tontin omistusOma
-
Kiinteistötunnus499-437-7-11, 499-473-2-12, 499-437-2-13
-
Tontin tyyppiRinnetontti
-
Tontin koko6222.000 m²
-
Lisätietoa tontistaTie perille
Myynnissä 3 kiinteistöä.
Kiinteistötunnus 499-437-7-11, Nybacken, pinta-ala 1926 m2, päärakennus sijaitsee tällä tilalla suurimmaksi osaksi.
Kiinteistötunnus 499-437-2-12,Nyåkersbacken, pinta-ala 3346 m2, varastorakennus sijaitsee tällä tilalla.
Kiinteistötunnus 499-437-2-13, Stenback, pinta-ala 950 m2, varastorakennus ja päärakennus osittain.
XX
3 fastigheter till salu.
Fastighetsbeteckning 499-437-7-11, Nybacken, areal 1926 m2, huvudbyggnaden är till största delen belägen på denna lägenhet.
Fastighetsbeteckning 499-437-2-12, Nyåkersbacken, areal 3346 m2, en uthusbyggnad är belägen på denna lägenhet.
Fastighetsbeteckning 499-437-2-13, Stenback, areal 950 m2, en uthusbyggnad och en del av huvudbyggnaden är belägna på denna lägenhet. -
Tontin nimiNybacken, Nyåkersbacken och Stenback
-
Lisätietoja rakennusoikeudestaMustasaaren kunta/Korsholms kommun 06 327 7111
-
KaavoitustilanneKaavoittamaton
-
KaavoitustiedotMustasaaren kunta/Korsholms kommun 06 327 7111. Oplanerad område.































